Logo Cuisines Grandidier à Rémilly (57)

Fabricant de cuisines sur mesure depuis 1956

France : Augny  : +33 (0)3 72 88 00 55
Remilly : +33 (0)3 87 64 60 23
Luxembourg : Foetz : +352 27 58 801

Les études se font sur rendez-vous.

Illustration cuisine sur mesure

Une cuisine qui vous ressemble

Nos designers et conseillers techniques travaillent en étroite collaboration pour vous proposer les solutions les mieux adaptées et vous accompagnent ensuite dans toutes les étapes de la conception de votre projet. Des esquisses, plans cotés et dessins 3D vous seront présentés tout au long de l’étude. Tous vos souhaits seront soigneusement pris en compte.

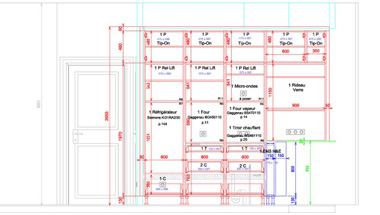
Dossier de fabrication et prise de mesure

Dossier de fabrication cuisine
Plan cuisine sur mesure
Plan cuisine sur mesure
Plan cuisine sur mesure
Plan cuisine sur mesure

Vous avez un projet ?

Contactez-nous